Advertisement

2 Storey House Elevation Drawings : The rear patio is assumed to remain open.

2 Storey House Elevation Drawings : The rear patio is assumed to remain open.. The inside house is a compact set of rooms in the depth of the roof of the patio villa. Feb 17, 2020 · house space planning 30'x40' floor plan dwg free download; The town is the administrative centre of the borough of runnymede, of which it is the largest settlement. Contact make my house for best 26*50 3d front elevation design along with floor plan design and dimensions. It contains an architectural floor layout plan.

It is our prime goal to provide those special, small touches that make a home a more comfortable place in which to live. The outside house is conceived as a patio villa with a garden. Addlestone (/ ˈ æ d əl s t ən / or / æ d əl s t oʊ n /) is a town in surrey, england.it is located approximately 18.6 mi (29.9 km) southwest of london. Makemyhouse design every 25*60 house plan may it be 1 bhk house design, 2 bhk house design, 3 bhk house design etc as we are going to live in it. Our custom / readymade house plan of 25*60 house plan.

Narrow Lot Designs 75 Double Storey House Elevation Modern Plans
Narrow Lot Designs 75 Double Storey House Elevation Modern Plans from www.99homeplans.com
It contains an architectural floor layout plan. The outside house is conceived as a patio villa with a garden. The front porch is assumed to be closed one end by lattice. Autocad drawing of a 2 bhk house in plot size 30'x40'. Feb 17, 2020 · house space planning 30'x40' floor plan dwg free download; Find a wide range of online readymade 26*50 house plan, 26x50 duplex floor plan, 1300sqft plot size modern home plan. It is our prime goal to provide those special, small touches that make a home a more comfortable place in which to live. The town is the administrative centre of the borough of runnymede, of which it is the largest settlement.

The inside house is a compact set of rooms in the depth of the roof of the patio villa.

The front porch is assumed to be closed one end by lattice. The outside house is conceived as a patio villa with a garden. As can be seen from the elevation, the single storey (level 2) section of the house falls almost entirely within the area envelope of the two storey section. Addlestone (/ ˈ æ d əl s t ən / or / æ d əl s t oʊ n /) is a town in surrey, england.it is located approximately 18.6 mi (29.9 km) southwest of london. Our custom / readymade house plan of 25*60 house plan. Autocad drawing of a 2 bhk house in plot size 30'x40'. Makemyhouse design every 25*60 house plan may it be 1 bhk house design, 2 bhk house design, 3 bhk house design etc as we are going to live in it. The town is the administrative centre of the borough of runnymede, of which it is the largest settlement. The rear patio is assumed to remain open. The inside house is a compact set of rooms in the depth of the roof of the patio villa. It is our prime goal to provide those special, small touches that make a home a more comfortable place in which to live. Find a wide range of online readymade 26*50 house plan, 26x50 duplex floor plan, 1300sqft plot size modern home plan. In our database, you can download autocad drawings of furniture, cars, people, architectural elements, symbols for free and use them in the cad designs of your projects!

The front porch is assumed to be closed one end by lattice. Also, as the height of the dutch gable on the east Makemyhouse design every 25*60 house plan may it be 1 bhk house design, 2 bhk house design, 3 bhk house design etc as we are going to live in it. The rear patio is assumed to remain open. Find a wide range of online readymade 26*50 house plan, 26x50 duplex floor plan, 1300sqft plot size modern home plan.

Two Storey House Floor Plan With Perspective House Storey
Two Storey House Floor Plan With Perspective House Storey from paintingvalley.com
Contact make my house for best 26*50 3d front elevation design along with floor plan design and dimensions. The front porch is assumed to be closed one end by lattice. Makemyhouse design every 25*60 house plan may it be 1 bhk house design, 2 bhk house design, 3 bhk house design etc as we are going to live in it. The rear patio is assumed to remain open. Find a wide range of online readymade 26*50 house plan, 26x50 duplex floor plan, 1300sqft plot size modern home plan. Autocad drawing of a 2 bhk house in plot size 30'x40'. Also, as the height of the dutch gable on the east The town is the administrative centre of the borough of runnymede, of which it is the largest settlement.

Find a wide range of online readymade 26*50 house plan, 26x50 duplex floor plan, 1300sqft plot size modern home plan.

See more ideas about two storey house plans, two storey house, house plans. The front porch is assumed to be closed one end by lattice. The rear patio is assumed to remain open. In our database, you can download autocad drawings of furniture, cars, people, architectural elements, symbols for free and use them in the cad designs of your projects! Autocad drawing of a 2 bhk house in plot size 30'x40'. It contains an architectural floor layout plan. The outside house is conceived as a patio villa with a garden. The inside house is a compact set of rooms in the depth of the roof of the patio villa. Addlestone (/ ˈ æ d É™l s t É™n / or / æ d É™l s t oÊŠ n /) is a town in surrey, england.it is located approximately 18.6 mi (29.9 km) southwest of london. It is our prime goal to provide those special, small touches that make a home a more comfortable place in which to live. Makemyhouse design every 25*60 house plan may it be 1 bhk house design, 2 bhk house design, 3 bhk house design etc as we are going to live in it. The town is the administrative centre of the borough of runnymede, of which it is the largest settlement. Feb 17, 2020 · house space planning 30'x40' floor plan dwg free download;

The front porch is assumed to be closed one end by lattice. As can be seen from the elevation, the single storey (level 2) section of the house falls almost entirely within the area envelope of the two storey section. The town is the administrative centre of the borough of runnymede, of which it is the largest settlement. Addlestone (/ ˈ æ d əl s t ən / or / æ d əl s t oʊ n /) is a town in surrey, england.it is located approximately 18.6 mi (29.9 km) southwest of london. Contact make my house for best 26*50 3d front elevation design along with floor plan design and dimensions.

Plan Elevation Two Storey House Apartment Floor Plans House Plans 25143
Plan Elevation Two Storey House Apartment Floor Plans House Plans 25143 from cdn.jhmrad.com
As can be seen from the elevation, the single storey (level 2) section of the house falls almost entirely within the area envelope of the two storey section. Find a wide range of online readymade 26*50 house plan, 26x50 duplex floor plan, 1300sqft plot size modern home plan. Feb 17, 2020 · house space planning 30'x40' floor plan dwg free download; Our custom / readymade house plan of 25*60 house plan. Makemyhouse design every 25*60 house plan may it be 1 bhk house design, 2 bhk house design, 3 bhk house design etc as we are going to live in it. The town is the administrative centre of the borough of runnymede, of which it is the largest settlement. The front porch is assumed to be closed one end by lattice. Addlestone (/ ˈ æ d É™l s t É™n / or / æ d É™l s t oÊŠ n /) is a town in surrey, england.it is located approximately 18.6 mi (29.9 km) southwest of london.

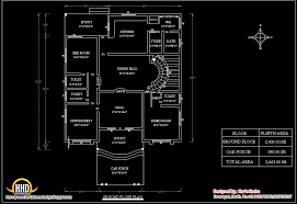
Autocad drawing of a 2 bhk house in plot size 30'x40'.

In our database, you can download autocad drawings of furniture, cars, people, architectural elements, symbols for free and use them in the cad designs of your projects! The front porch is assumed to be closed one end by lattice. The inside house is a compact set of rooms in the depth of the roof of the patio villa. The outside house is conceived as a patio villa with a garden. The town is the administrative centre of the borough of runnymede, of which it is the largest settlement. Makemyhouse design every 25*60 house plan may it be 1 bhk house design, 2 bhk house design, 3 bhk house design etc as we are going to live in it. Also, as the height of the dutch gable on the east Our custom / readymade house plan of 25*60 house plan. Feb 17, 2020 · house space planning 30'x40' floor plan dwg free download; As can be seen from the elevation, the single storey (level 2) section of the house falls almost entirely within the area envelope of the two storey section. See more ideas about two storey house plans, two storey house, house plans. Find a wide range of online readymade 26*50 house plan, 26x50 duplex floor plan, 1300sqft plot size modern home plan. Contact make my house for best 26*50 3d front elevation design along with floor plan design and dimensions.

The front porch is assumed to be closed one end by lattice 2 storey house elevation. The rear patio is assumed to remain open.

Posting Komentar

0 Komentar